9700 Szombathely, Saághy István utca 6. •
+36 30 852 99 28 •
iroda@stefanicsluca.hu
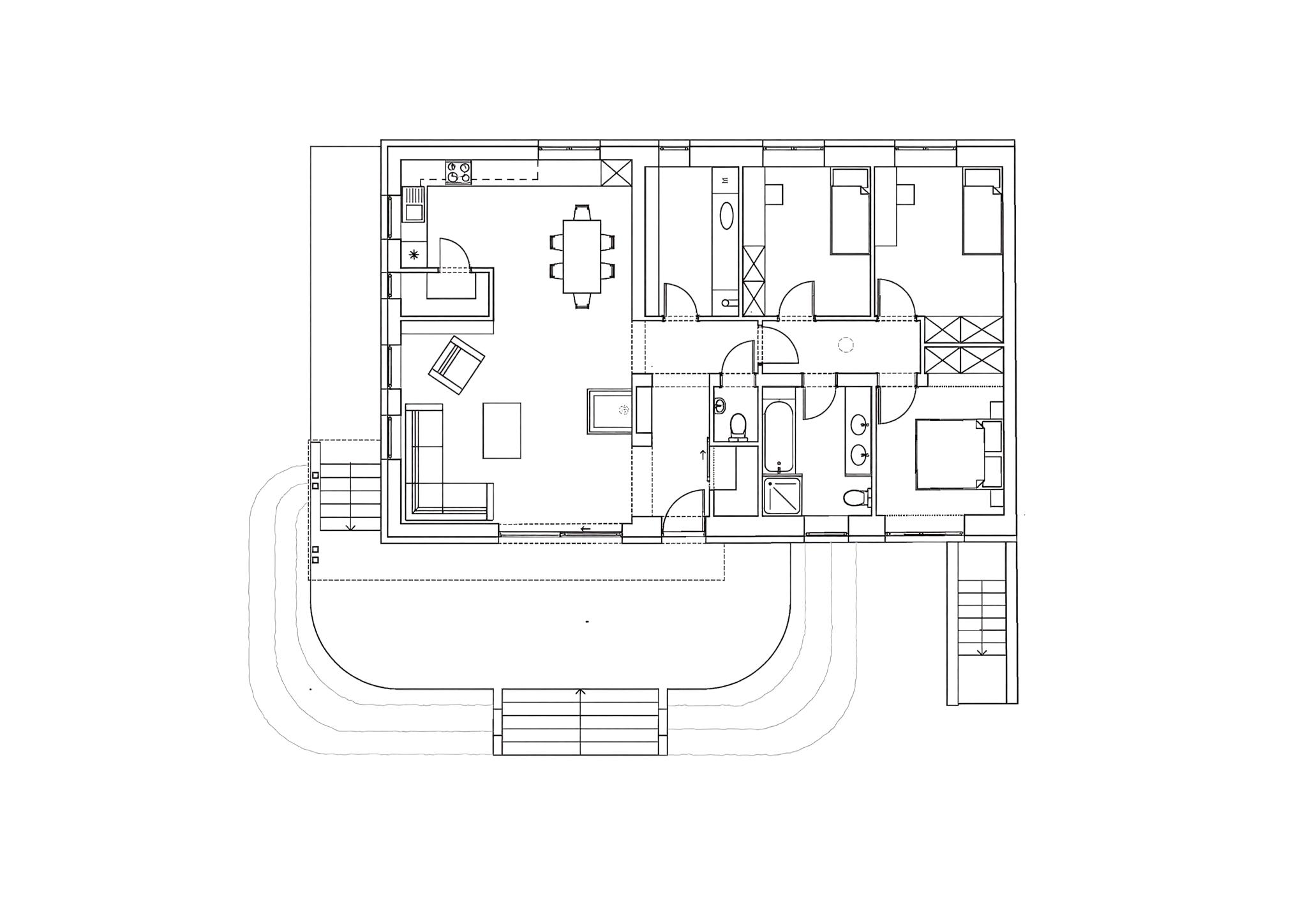
A projekt egy meglévő, ikresen csatlakozó családi ház átalakítására és bővítésére irányult.
Helyszín: Szombathely
Év: 2024
Funkció: családi ház átalakítása és bővítése
A megbízó egy fiatal pár, akik családalapítás előtt állnak, így fontos szempont volt, hogy az otthon egyszerre legyen modern, kényelmes és hosszú távon is jól használható.
A tervezés során külön figyelmet kapott a tájolás: a szülői hálót és a nappalit a kert felé nyitottuk, így ezek a legfontosabb helyiségek kapcsolatban állnak a zöld környezettel. Megbízói igény volt, hogy a konyha közvetlen kapcsolatban legyen a nappalival, ugyanakkor úgy helyeztük el, hogy a munka közben keletkező rendezetlenség ne legyen szem előtt. Ennek érdekében a konyhát a kamra mögé rejtettük, amely praktikus és esztétikai szempontból is előnyös megoldásnak bizonyult.
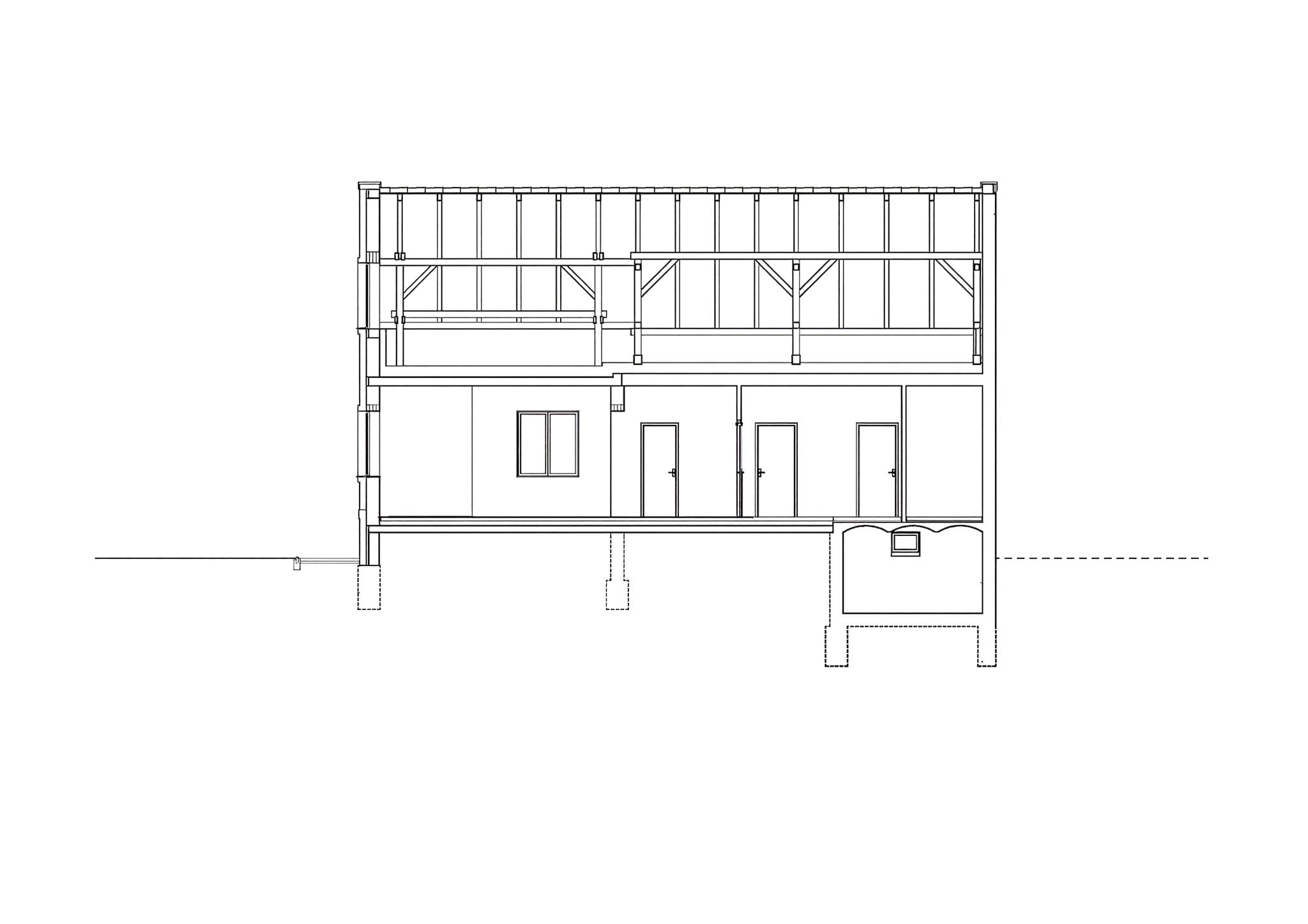
A homlokzatot is újragondoltuk: a meglévő nyílászárók átalakításával arányaiban harmonikusabb és korszerűbb megjelenést alakítottunk ki, miközben a ház karakterét is erősítettük.
A meglévő épület szerkezeteinek felhasználása nemcsak jelentős költségmegtakarítást tett lehetővé, hanem komoly ökológiai előnnyel is jár: a szürke energia újrafelhasználásával csökkenthető az építés környezeti terhelése. A koncepció alapját így az a szemlélet adta, hogy a régi házakban értéket lássunk – ne bontsuk el őket, hanem mentsük meg és gondoljuk újra őket, a jelen igényeihez igazítva.
Ennek eredményeként egy olyan otthon született, amely egyszerre tiszteli a meglévő értékeket és felel meg a mai életformának: világos, jól szervezett terek jöttek létre, amelyek hosszú távon is rugalmasan alkalmazkodnak a fiatal család változó igényeihez.
9700 Szombathely, Saághy István utca 6. • +36 30 852 99 28 • iroda@stefanicsluca.hu