9700 Szombathely, Saághy István utca 6. •
+36 30 852 99 28 •
iroda@stefanicsluca.hu
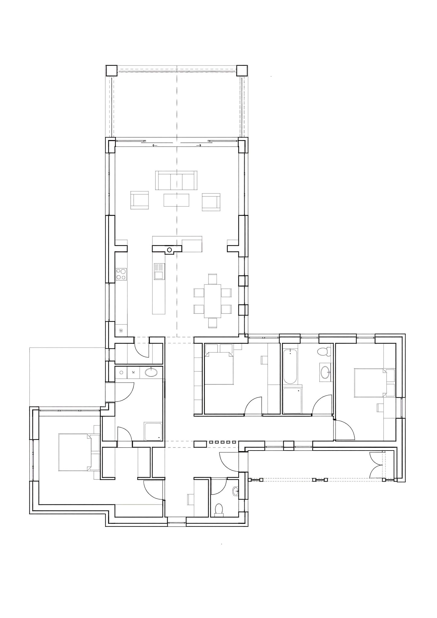
A megbízó egy fiatal pár volt két kisgyermekkel, akik a falu szélén, közvetlenül az erdő mellett, panorámás telekre szerettek volna otthont építeni.
Helyszín: Vonyarcvashegy
Év: 2019
Funkció: családi ház, új építés
A ház teraszáról feltárul a Balaton látványa, amelynek hangsúlyozásában a telek lejtése is kulcsszerepet játszott.
Az alaprajz kialakításánál fontos szempont volt, hogy a szülői és a gyerek szobák is megfelelően elszeparálódjanak a közösségi terektől és egymástól is, így biztosítva a nyugodt, intim életteret a szülők és a gyerekek számára is. A nappali és az étkező tér közvetlen kapcsolatban áll egymással, ugyanakkor a térszervezésnek köszönhetően megőriz egyfajta intimitást. Az átgondolt nyílászáróknak köszönhetően a közlekedők világosak, barátságos átmenetet biztosítva a terek között.
A nappali feletti nyitott fedélszerkezet vagány, karakteres megjelenést ad az enteriőrnek, míg a nagyméretű üvegfelületek lehetővé teszik a természet és a panoráma közvetlen bevonását a mindennapi életbe – ezek kifejezett megbízói igények voltak.
Az anyaghasználatban a természetközeli, időtálló megoldások dominálnak: a kő és fa homlokzati elemek harmonikusan illeszkednek a környező erdőhöz és a tájhoz. A tervezésnél kiemelt szerepet kapott a fenntarthatóság: a helyi anyagok alkalmazása, az épület tájba illesztése, valamint a passzív energiák kihasználása (tájolás, árnyékolás, természetes fények maximalizálása) mind hozzájárulnak az ökológiai lábnyom csökkentéséhez.
Az épület így egyszerre kortárs és otthonos: modern nyitottságot és látványt kínál, miközben meleg, védett életteret és hosszú távon fenntartható működést biztosít.
9700 Szombathely, Saághy István utca 6. • +36 30 852 99 28 • iroda@stefanicsluca.hu