Családi ház átalakítása – Szombathely

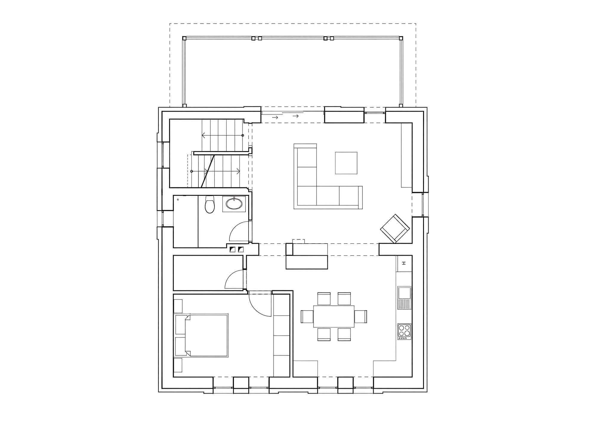
A projekt kiindulópontja egy klasszikus, szuterén + magasföldszintes kádárkocka volt, amely teljes alaprajzi és homlokzati újragondolást igényelt.

Helyszín: Szombathely

Év: 2022

Funkció: családi ház, felújítás és átalakítás

A házaspár megbízóként egy korszerű, mégis polgári hangulatú otthont szeretett volna, amelyben a már felnőtt gyerekük időszakos látogatásaihoz is kényelmes terek állnak rendelkezésre.

Az átalakítás során az eredeti alaprajzból mindössze a lépcső és a fürdő helye maradt változatlan, minden egyéb funkció újraszervezésre került. A homlokzat is jelentősen átalakult: a meglévő ablakok arányait szűkítéssel és megnyújtással módosítottuk, hogy a ház egyszerre őrizze meg klasszikus karakterét, mégis korszerűbb, arányosabb megjelenést kapjon.

A belső tér központi eleme egy újonnan épített cserépkályha, amely egyszerre szolgálja a komfortot és ad meghatározó karaktert az otthonnak.

A megújult ház visszafogottan elegáns, harmonikusan ötvözi a régi szerkezet adottságait a mai igényeknek megfelelő funkcionális elrendezéssel és újragondolt megjelenéssel.


Látványterveim:


 További Munkáim

9700 Szombathely, Saághy István utca 6. • +36 30 852 99 28 • iroda@stefanicsluca.hu