9700 Szombathely, Saághy István utca 6. •
+36 30 852 99 28 •
iroda@stefanicsluca.hu
A megbízó befektetési céllal kívánt olyan családi házat építeni Balatongyörök újonnan parcellázott részén, amely egyszerre kínál meghitt otthont és nyaralási lehetőséget.
Helyszín: Balatongyörök
Év: 2022
Funkció: családi ház, új építés
Fontos szempont volt, hogy az épület harmonikusan illeszkedjen a táj arányaiba, miközben modern, világos és élhető tereket biztosít a leendő tulajdonos számára.
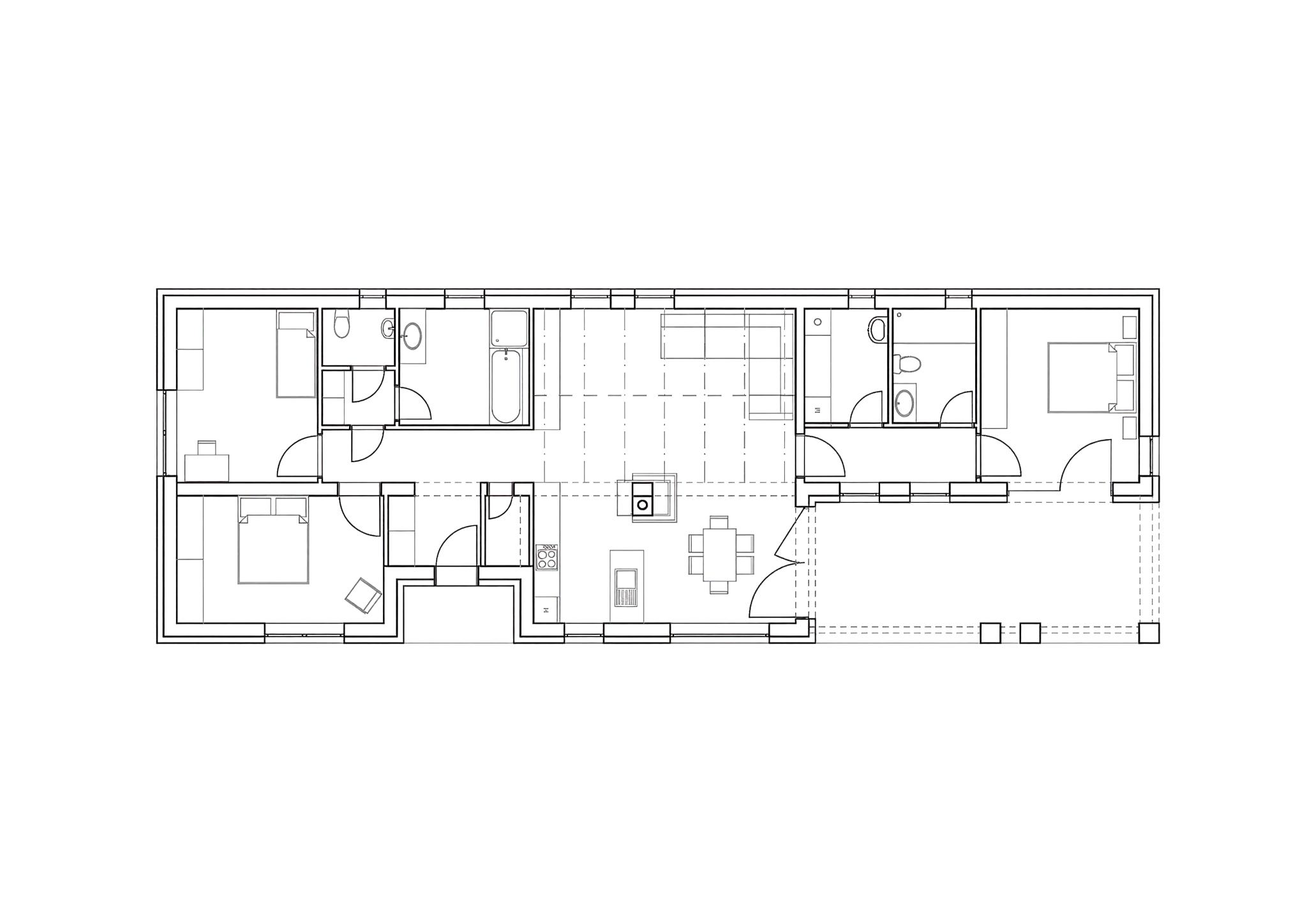
Az épület tömegét egy nyeregtetős hasáb adja, amely egyszerűségével könnyíti a kivitelezést, és egyben utal a környék hagyományos présházainak arányaira. A központban egy tágas, egylégterű nappali–konyha–étkező kap helyet, amelynek fókuszpontja a kályha. A nappali felett a síkfödém részben megnyitásra kerül, így láthatóvá válnak a födémgerendák, amelyek meleg, otthonos és karakteres hangulatot adnak. A privát zónák két irányba ágaznak: az utca felé két hálószoba, a kert felé pedig egy master bedroom külön teraszkapcsolattal.
A koncepció kialakításában a gazdaságosság és a karakteres de visszafogott stílusjegyek kialakítása játszotta a főszerepet. Ennek eredményeként olyan terek születtek, amelyek nemcsak szépek, hanem átgondolt működésükkel a mindennapi élet változó igényeit is kényelmesen támogatják.
9700 Szombathely, Saághy István utca 6. • +36 30 852 99 28 • iroda@stefanicsluca.hu