9700 Szombathely, Saághy István utca 6. •
+36 30 852 99 28 •
iroda@stefanicsluca.hu
A telek Gencsapáti egy újonnan beépülő részén található, ahol jellemzően kortárs családi házak sorakoznak.
Helyszín: Gencsapáti
Év: 2015
Funkció: családi ház, új építés
A telek különlegességét a hátsó részén álló nagy fák és a természetes patakparti környezet adják, amely inspiráló kiindulópontot jelentett a tervezés során.
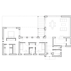
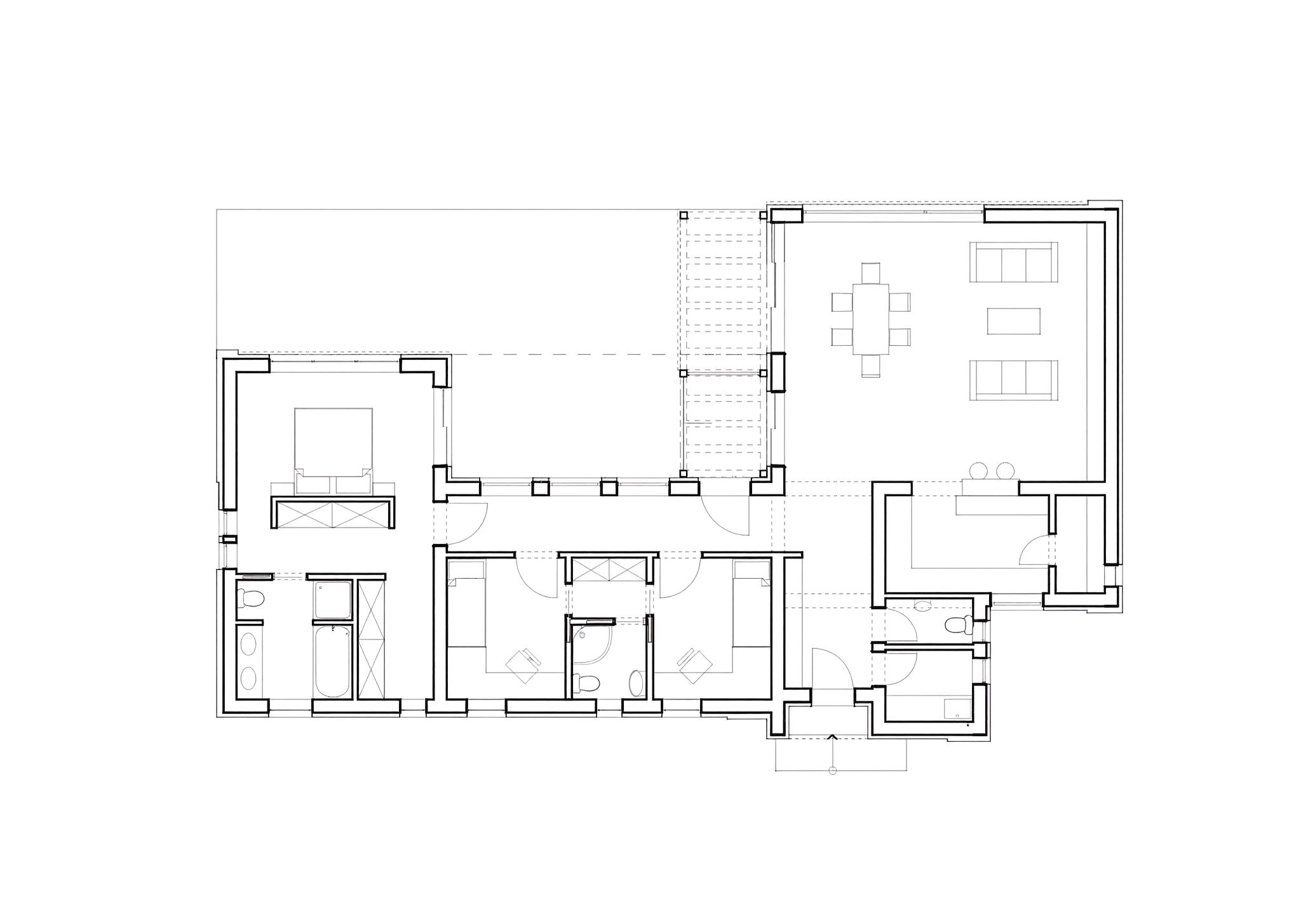
A megbízó egy fiatal pár volt családalapítás előtt, akik modern, minimalista stílusú, ugyanakkor otthonos és élhető házat szerettek volna. Fontos szempont volt, hogy a szülők és a későbbi gyerekek életterei részben elkülönüljenek, de mégis kapcsolatban maradjanak egymással.
Az épület kompakt, mégis tágas terekkel gazdálkodik. A belsőben a letisztultság és a melegség egyensúlya érvényesül: természetes anyaghasználat, világos terek és nagy üvegfelületek jellemzik. A házhoz egy nagy terasz kapcsolódik, amely az udvar felé nyitott, de intimitást is biztosít. A teraszon külön helyet kapott egy leválasztott „kalitka” két arapapagáj számára, amely a ház egyedi, személyre szabott elemévé vált.
A koncepció kialakításában a minimalista arányok, a természetközeliség és a funkcionalitás játszották a főszerepet. Így olyan otthon született, amely visszafogott eleganciával illeszkedik környezetébe, és hosszú távon is kényelmes életteret kínál egy bővülő család számára.
9700 Szombathely, Saághy István utca 6. • +36 30 852 99 28 • iroda@stefanicsluca.hu